180-1239-0099 杨经理

特点:

稳步前行 Stability
严格通过国家稳定性测试要求,高可靠的稳定性
货叉提升至600mm及以上高度时,车子将自动限制最大行走速度,保障行驶安全
油管内装有防爆阀,油管防爆保护,保障人员安全
掌控有度 Excellent Control
高端林德舵柄,宽大的手部保护,精准操控,转向轻便
进口品牌部件,1212C科蒂斯控制器,质量可靠性能参数:最大行驶速度4.7km/h,速度/加速度均可调
龟速功能,确保狭小空间内操作
省心省力 save time and effort
电池免维护,无需加水,为客户节省日常维护成本
内置充电器,220v输入电压,充电方便,无需指定充电房
多功能显示仪表盘带小时数、剩余电量,故障代码显示
标准配置和选项
标准配置 Standard Equipment
多功能显示仪表盘
免维护电池
内置充电机
Curtis 控制器
电磁制动
自动驻车制动
聚氨酯驱动轮
聚氨酯双承载轮
整体式货叉架 600/1150mm
钥匙开关
喇叭
可选配置 Optional Equipment
不同高度门架选项
整体式货叉架 685/1150mm
技术参数
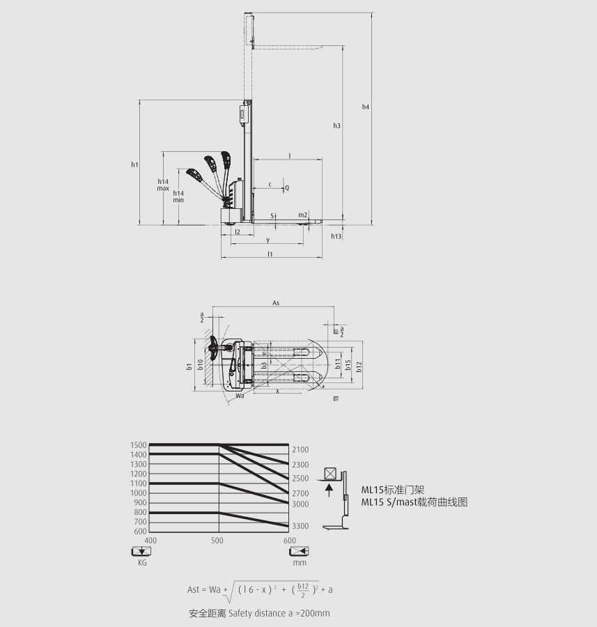
载荷曲线图普通门架带标准货叉架:
